シニアの奥様がゆったりできる機能的な浴室・洗面所に
築21年~30年/2世帯での暮らし
ホーロの浴槽なので、プラスチック製とは格段に違う
「あったまり感」にS様は驚かれた。
床はタカラ独自の本物の磁器タイルなのも、
高級感あり、浴槽同様、掃除がしやすいとのこと。
天井の換気扇は、乾燥・暖房機能が兼用。
ランドリーパイプに洗濯物を吊り、乾かすことができる。
浴室の磁器タイルと
洗面スペースに敷いたコルクの床の間は、
段差なしのバリアフリー対応。
床のコルクと扉や棚の無垢板の色合いと、
木目のような模様の洗面のデザインが調和。
2段の引き出しなので、モノの取り出しが簡単に。
手すりもつけて安全に。
床は、足裏にも優しく、水に強い30㎝角のコルクボード。
無垢材で作成した引き戸。
通常より広い1m幅なので、車いすでも楽に通れるバリアフリー対応。
吊り式の引き戸なので、軽い力でガラリガラリと開け閉めできる。
小さな3つの飾り窓のガラスは、当社自慢の「江戸切子」。
洗濯機の上に、当社大工手作りの無垢板の棚。
開き扉で開けやすい。
浴室の洗剤やトイレットペーパーなど、
必要な消耗品をすべて収納。
廊下の左右に扉を並べて動線をまとめ、機能的かつバリアフリーに。
手前右が、階段下の収容スペースの扉。その奥が、浴室・トイレの扉。
手前左が納戸の扉。
突き当りが、リフォームした1階の洋間。
一挙に心地良い木の世界に。
右手手前の扉は、収納スペースに。
中央扉は、部屋からすぐに出入りできるウォーキングクローゼットにつづく。
一番奥の扉は、廊下につながる。
無垢板の床下は、河合工務店おススメの床暖房を設置。
洋室に、唐突に柱が立つ感があるが、
構造上重要な柱なので、残していただいた。
リフォームの設計にあたり、建築士に調査を依頼し、
構造計算した際の判断。
建て主様が「取り除きたい」と要望されれば
したがってしまう業者は多いですが、
私たちはそうしません。
「命を守る安全」を第一条件にしますから。
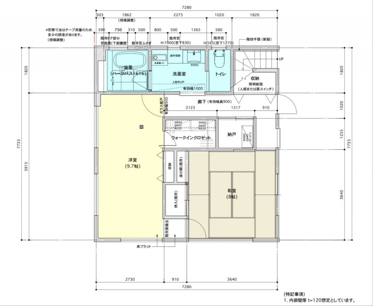
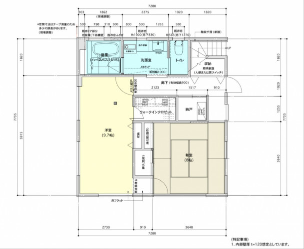
リフォームのための平面図。水色が水回りで、
分かれていた洗面(続く浴室)とトイレを
ひとつながりに。
仕上がり空間をMOVIEでご紹介
このお店が
施工しました !
株式会社河合工務店 厳選事例で解説! 「私たちは、なぜタカラスタンダードなのか?」創業87年、地域密着工務店の理由【実績200件以上】 お店の詳細を見る
電話で相談するTEL03-3362-6492受付時間:09:00~17:00
定休日:年中無休
リフォーム概要
- 構造
- 木造
- 築年数
- 築21年~30年
- 施工期間
- 約3ヶ月
- リフォーム総額
-
約1,000万円
- リフォーム箇所
- 浴室・お風呂、洗面所・洗面化粧台、寝室・子ども部屋・趣味部屋、その他屋内
- リフォーム範囲
- 水まわり機器入れ替えリフォーム、床・壁・天井も含むリフォーム
※使用製品などは部位別の施工事例詳細ページでご覧ください
部位別のリフォーム内容
浴室・お風呂
リフォームのポイント
- バリアフリー
- 収納力アップ
- 風通し
- デザイン・空間コーディネート
- 家事らく
かつて借家人が使用していた玄関を取り壊し、
開いたスペースに浴室をずらした。
玄関部は網入りの窓に。
浴槽は、タカラ製のホーロー製とし、
また同社製の磁器タイルを床に敷く。
洗面所・洗面化粧台
リフォームのポイント
- バリアフリー
- 収納力アップ
- 風通し
- デザイン・空間コーディネート
- 家事らく
玄関を取り壊し、空いスペースに浴室をずらすことで、
洗面スペースを広げる。
その他
リフォームのポイント
- バリアフリー
- 収納力アップ
- 風通し
- デザイン・空間コーディネート
- 家事らく
かつて、洗面所(浴室に続く)とトイレにそれぞれ扉があり、
出入り口が2つあったが、それを1つにまとめた。
廊下の左右に引き戸を並べ、動線をシンプルにし、機能性高める。
一方に、洗面所・トイレの扉、階段下の収納スペースの扉、
もう一方に、納戸の扉を設置した。
この機会に、廊下突き当りの1階和室も、木の空間に大変身。
お客さまの声
老後に備えたバリアフリー空間への改修も、タカラ製の浴室・洗面も大満足!
家が築20年となり、老朽化した1階を改修したいと考えていた折、
パソコン教室で親しくなった河合孝会長にご相談し、
ご子息の稔社長に引き受けていただくことに。
かつて夫婦で2階を生活拠点にしていましたが、
1階の借家人が家を出て以来、私はそこを洋間を寝室として使用。
さらなる高齢化にそなえて、寝室と同時に
傷んだ浴室・洗面所の改修することに。
タカラ製のホーロー浴槽も洗面もとても使いやすく、
バリアフリー対応をさまざまに工夫した
木の空間がとても気に入っており、大満足です。
このお店が
施工しました !
株式会社河合工務店 厳選事例で解説! 「私たちは、なぜタカラスタンダードなのか?」創業87年、地域密着工務店の理由【実績200件以上】
- 所在地
-
〒164-0001 東京都 中野区 中野1-41-20
- 電話番号
- 営業時間
-
09:00~17:00
- 定休日
-
年中無休
- FAX
-
03-3363-3704
- 公式
サイト
- リフォームローン利用可能
- 駐車場あり
リフォームのご計画に
お役立てください













一言コメント
1938年創業以来、東京・中野の地域密着型工務店として、人と環境に優しい家づくりを行っています。タカラスタンダードの社風と製品に惚れこんで、そのユニットバスとシステムキッチンを、いつもお客様に自信をもってお勧めしています。私どもが丹精込めて手がける木の空間に調和し、心和む住環境をつくるからです。特に、リフォームにおいては、劇的に住まい方が変えてしまう魅力を秘めるのがタカラスタンダードの品々。ぜひ、その施工には、私たちにお声がけください。無料相談からお承りしております。