おしゃれで動線を考えたキッチン
築21年~30年/2世帯での暮らし
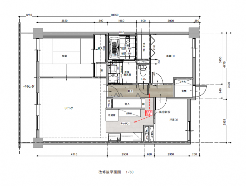
新たなキッチンは、石目とホワイトなモダンな雰囲気にして大変明るくなりました。右側の袖壁も撤去してシンクとコンロを反転したため、エアコンもきくようになり、冷蔵庫の出し入れがストレスなくなりました。
新設キッチンは、レンジフードとシンクを入替え冷蔵庫をリビング側にして、ストレスフリーになりました。
クローゼットを小さくして、廊下からキッチンへ直接行けるようにして、そのくろぜっとの一部奥行きが15cmの薄型のパントリーも設けて、食材の管理も楽になりました。
玄関からキッチンへスムーズに移動ができるようになりました。
このお店が
施工しました !
和工 お店の詳細を見る
受付時間:08:30~17:00
定休日:日曜・土曜・その他
(祝・夏季・年末年始休み)
WEBでのお問い合わせはこちら
リフォーム概要
- 構造
- RC造
- 築年数
- 築21年~30年
- 同居するご家族の人数
- 3
- 施工地
- 愛知県 / 日進市
- 施工期間
- 約10日
- リフォーム総額
-
約390万円 部位別の費用
- リフォーム箇所
- キッチン・台所
- リフォーム範囲
- 水まわり機器入れ替えリフォーム、床・壁・天井も含むリフォーム、間取り変更・増減改築を含むリフォーム
※使用製品などは部位別の施工事例詳細ページでご覧ください
部位別のリフォーム内容
キッチン・台所
リフォームのポイント
- バリアフリー
- 風通し
- デザイン・空間コーディネート
- 家事らく
閉鎖的で暑くて寒いキッチンを少しでも使いやすく快適にするために廊下からキッチンへ行く新たな動線を作り、その廊下には風を通すため回転窓を取付け換気にも工夫しました。冷蔵庫も以前は一番奥でしたが、リビング側に移動して飲み物を取りに来る家族と体が触れずになき身を出し入れぢキツ様になりました。 またシンクとコンロを入れ替えたため排水管の問題もあり廊下と同じ高さになりそこもバリアフリーになりました。
お客さまの声
おしゃれで動線を考えた使いやすいキッチン
玄関からキッチンに行く動線を、クローゼットを狭くして通路を設けましたので、玄関からスムーズに移動ができるようになりました。
キッチンはレミューのクオーツストーンで高級感のある白基調で大変明るくて使いやすくなりました。共働きのため大型のボッシュの食洗器を導入して家事の時間を軽減できると共に、小物の収納にアイラックも設けました。
同じ都道府県内で部位別にリフォーム事例を探す
リフォームのご計画に
お役立てください







一言コメント
お客様おひとり おひとりの声に耳を傾け、暮らしに寄り添い理想のお住まいをご提案します。
安心していただける技術力はもちろん、心に寄り添い、お客様の夢をカタチにするお手伝いをいたします。