枚方市M様邸 マンション、スケルトンリノベーションの始まりはタカラのシステムバスでした!
築31年~40年/二人暮らし
冷蔵庫がパントリー内に入り 流れる様な家事導線になりました。キッチン正面のパネルはマグネット小物つけ放題です。
収納力アップ&デザイン性も向上。すっきりとした美しい空間に生まれ変わりました。お二人で選んだアクセントクロスも素敵です。
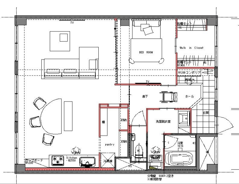
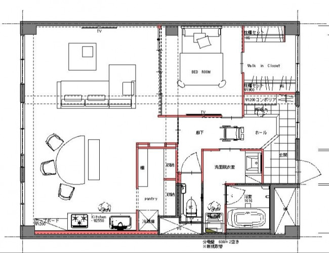
玄関のアプローチが大きくなりお部屋の窓が玄関の窓になった事で風が通り抜ける導線ができました。総面積は変わらないのに各SPACE全て大きくサイズアップしました。ぐるぐると繋がるお部屋の中はこれからのお二人の暮らしがどこに居ても繋がる安心感のある毎日になればと思います。M様邸に係ったスタッフ一同・忘れられない期間になりました。
このお店が
施工しました !
住まいる倶楽部 お店の詳細を見る
電話で相談するTEL0120-640-740受付時間:10:00~18:00
定休日:水曜
(祝日)
上記の電話番号にかからない場合は
072-807-8175におかけください。
WEBでのお問い合わせはこちら
リフォーム概要
- 構造
- RC造
- 築年数
- 築31年~40年
- 同居するご家族の人数
- 2
- 施工地
- 大阪府 / 枚方市
- 施工期間
- 約3ヶ月
- リフォーム総額
-
約1,200万円 部位別の費用
- リフォーム箇所
- キッチン・台所、浴室・お風呂、洗面所・洗面化粧台、トイレ、リビング、ダイニング、脱衣所、寝室・子ども部屋・趣味部屋、窓・サッシ
- リフォーム範囲
- 水まわり機器入れ替えリフォーム、床・壁・天井も含むリフォーム、間取り変更・増減改築を含むリフォーム
※使用製品などは部位別の施工事例詳細ページでご覧ください
部位別のリフォーム内容
キッチン・台所
リフォームのポイント
- バリアフリー
- 収納力アップ
- 風通し
- デザイン・空間コーディネート
- 家事らく
3LDKから間取りが大きく変わり贅沢な大きな空間のLDKとプライベート空間の2室での構成になりました。終の棲家と言う言葉が心に残るリノベーションでした。キッチンの一つ一つをお二人でお選びいただく時間がとても幸せな気持ちになりました。ゆったりとした時間の流れるLDKの一面に圧巻のトレーシアがお部屋の窓から見える絶景と重なり素晴らしかったです。
浴室・お風呂
リフォームのポイント
- バリアフリー
- デザイン・空間コーディネート
- 家事らく
1116の浴室は少し狭くゆっくりバスタブに浸かると言うよりシャワールームとしてお使いでした。間取りを変える事で1616の浴室になり洗面台は1200まで入る様になりました。ゆったりとお過ごしになれる空間と収納力・洗濯機からの家事導線。全て解消できました。巣立たれたお子様ご家族がお泊りになられた時にはホテルみたいと楽しんでおられた様子でタカラのお風呂の高級感は素晴らしいです。お風呂はタカラで・・・このお言葉が最初のお打ち合わせのスタートでした。
洗面所・洗面化粧台
リフォームのポイント
- バリアフリー
- 収納力アップ
- デザイン・空間コーディネート
- 家事らく
洗面所は洗面台と洗濯機でいっぱいになっていました。洗濯機を使っていると洗面台の前は通れずお一人で使う空間になっていました。浴室を1616に大きくしお風呂をL型で囲む様に設計しました。浴室の横にはドラム式洗濯乾燥機。L型のもう一つは1200サイズの洗面台。どちらを使われていても重なる事のない導線になりました。L型の真ん中には開閉式のたたみ台を設け家事導線・洗面台の快適さ・トールキャビネットの収納力・足りなかった部分を全て満たして新しく生まれ変わりました。
トイレ
リフォームのポイント
- 収納力アップ
- デザイン・空間コーディネート
- 家事らく
従来のトイレからシステムトイレへリフォームしたことで、タンクまわりがスッキリし、使いやすい収納も増えました。見た目もスタイリッシュで清潔感のある空間になりました。
その他
リフォームのポイント
- バリアフリー
- 収納力アップ
- 風通し
- デザイン・空間コーディネート
- 家事らく
間取りを変える事で浴室や洗面台のサイズアップができただけでなく、家事導線や生活そのものを変える事ができました。生活スタイルはご家族の成長や年数で変わってまいります。快適さは更に快適に・・・無駄な空間を造らず必要な空間の広さをバランス良く確保・・・朝昼晩の生活導線・家事導線・わかりやすい収納と収納力・間取りには住設を含め、お客様の生活をまるごと快適にする事が大切です。日常のお二人の生活から、お子様家族が戻られた時の快適な空間 どんなシーンになっても皆さんが笑顔で過ごして頂ける空間になりました。
お客さまの声
子供達が独立したのを契機に終の棲家としてフルリノベーションを行う事を決めました。
お風呂はタカラスタンダードと決めていたのでショールーム見学時に担当者の方に「信頼できる業者さんを紹介していただけませんか」と聞きました。その時に紹介していただいたのが住まいる俱楽部さんでした。「大手さんの方がいろんな面で安心できるのでいいのかな」と悩みましたが、担当者の方の熱意や親切さ、自分の事のように考えて下さる住まいる俱楽部さんに決めました。出来上がって本当に住まいる俱楽部さんに依頼して良かったと思います。自分の判断を褒めたいくらいです。※Googleの口コミの一文を引用させていただきました。
このお店が
施工しました !
住まいる倶楽部
- 所在地
-
〒573-0127 大阪府 枚方市 津田元町1丁目4-1 アルプラザ枚方 1F
- 電話番号
- 営業時間
-
10:00~18:00
- 定休日
-
水曜 (祝日)
- FAX
-
072-807-8176
- 公式
サイト
- 住宅リフォーム事業者団体登録
- リフォームローン利用可能
- 駐車場あり
- 女性プランナー
- インテリア相談可
リフォームのご計画に
お役立てください











一言コメント
Reform&Dreamsの住まいる倶楽部です。お客様の夢を叶えるリフォームのお手伝いをさせていただきます。キレイになる事はもちろん、家事導線が良くなったり家族のコミュニケーションが増えたり、沢山の良かったを感じていただける事が大切とスタッフ一同考えております。お客様の良かったを沢山感じていただける様に色んな角度からご提案させていただきます。