マンション
マンションリフォーム!!
築31年~40年/子どもとの暮らし
WEBでのお問い合わせはこちら
リフォーム概要
- 構造
- RC造
- 築年数
- 築31年~40年
- 同居するご家族の人数
- 3
- 施工地
- 東京都 / 台東区
- 施工期間
- 約1ヶ月
- リフォーム総額
-
約750万円 部位別の費用
- リフォーム箇所
- キッチン・台所、浴室・お風呂、リビング、ダイニング、その他屋内
- リフォーム範囲
- 水まわり機器入れ替えリフォーム、床・壁・天井も含むリフォーム
※使用製品などは部位別の施工事例詳細ページでご覧ください
部位別のリフォーム内容
キッチン・台所
リフォームのポイント
- 収納力アップ
- デザイン・空間コーディネート
- 家事らく
間口が小さく食洗機をあきらめていましたが、トレーシアのシンク下食洗器で解決!
限られたスペースの中で収納力をアップするためにアイラックもご採用いただきました。
浴室・お風呂
リフォームのポイント
- デザイン・空間コーディネート
押入を縮小して1216サイズから1616サイズにシステムバスを大きくしました!
ミラーもマグネットを採用しお掃除しやすいお風呂に!
その他
リフォームのポイント
- 収納力アップ
- デザイン・空間コーディネート
- 家事らく
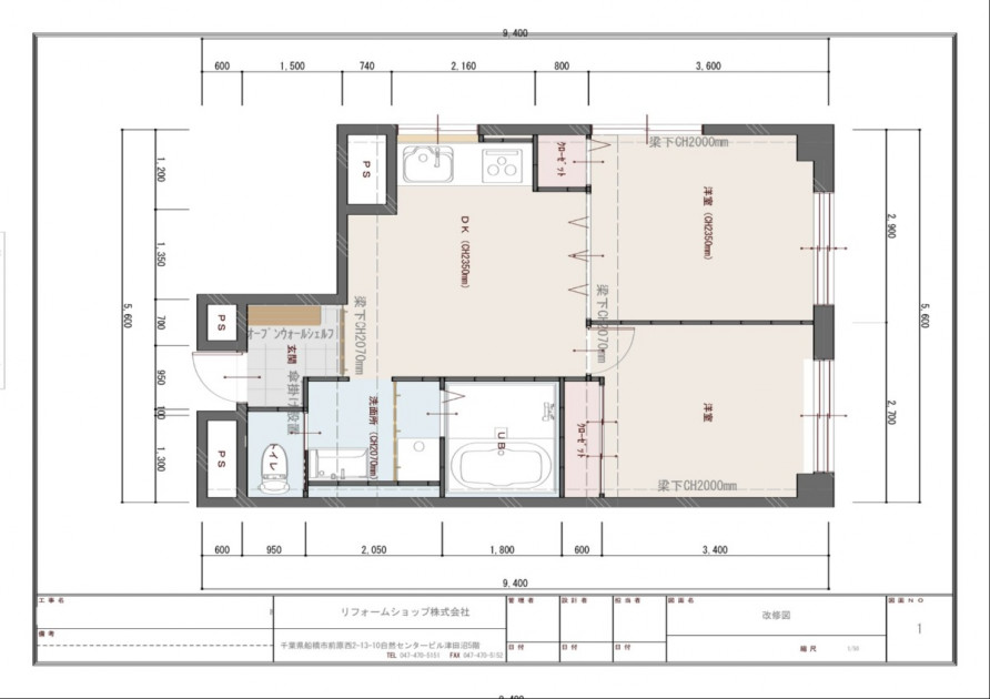
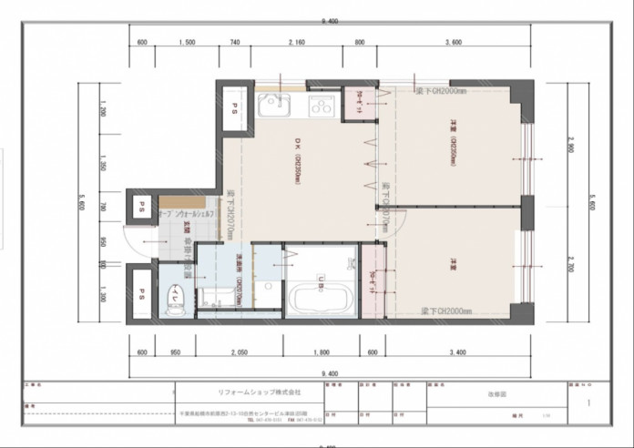
ご購入されたマンション全体のリフォームをお任せいただき、水回りの交換や間取りの変更などこれからのライフスタイルにあわせてリフォームさせていただきました。
和室を洋室に変更する際に収納を解体して浴室のサイズアップをし、ダイニングとつながる洋室は可動間仕切りで開閉できるように改装しました。お子様の成長に伴いリビングでも個室でも使い分けられるようになっています!
リフォームのご計画に
お役立てください







一言コメント
予算内で笑顔をつくる「わが家にちょうどいい」空間づくり専門店