ホーローと梁補強で叶えた家事らくな暮らし
築21年~30年
キッチンパネルの範囲を広げたことで、よりお掃除がしやすくなっています。また、対面キッチンということもあり、水栓はデザイン性が高く、また衛生的にも使うことができるタッチレスタイプを選定しました。
清潔感のあるホワイトでまとめられた浴室。カームグレーを選定した床は汚れが目立ちにくく、またキープクリーンフロアのおかげで、排水口の蓋まで傷など気にせずゴシゴシお掃除が可能。さらには鏡をマグネット式にしたことで、今まではお掃除ができなかった鏡の裏までピカピカにすることができます。
洗面室を広くしたことで、洗面台・収納・洗濯機を横並びに配置し、ライフスタイルに合った動線を作ることができました。朝の準備が洗面室で完結するよう、ハンガーパイプを設置したのもポイントの一つ。
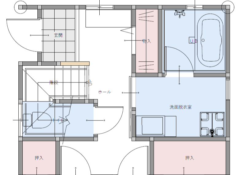
洗面室を広げても、広さは十分ある廊下。ただ開き扉だと場所は取ってしまうため、アウトセット引き戸を採用しています。
柱を移設し、かつ梁で補強をし、広々した洗面室を実現しました。
最初は押入側を広げようと考えていましたが、筋交いなどがあり、広げるのは難しいと判断。どうにか広げることができることができないかと考えた末、廊下側を広げることにしました。当初より大掛かりな内容となりましたが、お施主様にはとても喜んでもらうことができました。
このお店が
施工しました !
株式会社グッディーホーム お店の詳細を見る
電話で相談するTEL0120-049-195受付時間:09:00~17:30
定休日:年中無休
(GW、夏季、年末年始は定休となります。)
上記の電話番号にかからない場合は
0422-60-2677におかけください。
リフォーム概要
- 構造
- 木造
- 築年数
- 築21年~30年
- 同居するご家族の人数
- 3
- 施工地
- 東京都
- 施工期間
- 約30日
- リフォーム総額
-
約780万円 部位別の費用
- リフォーム箇所
- キッチン・台所、浴室・お風呂、洗面所・洗面化粧台
- リフォーム範囲
- 水まわり機器入れ替えリフォーム、床・壁・天井も含むリフォーム、間取り変更・増減改築を含むリフォーム
※使用製品などは部位別の施工事例詳細ページでご覧ください
部位別のリフォーム内容
キッチン・台所
リフォームのポイント
- 収納力アップ
- 家事らく
最初は食洗機だけでも新設をしたいと考えていたキッチンでしたが、それぞれの設備機器も古くなり、今後使用していくには機能も収納力も不足していると感じ、キッチン本体を交換することを決めました。その中で採用をしたのはレミュー。カウンターはシンクと同素材のステンレスを選定し、継ぎ目がないことでお掃除もラクラク、清潔に使用できます。
食洗機は設置しましたが、開き扉だった収納を引出しにすることで、大容量の収納を確保することができています。
浴室・お風呂
リフォームのポイント
- デザイン・空間コーディネート
- 家事らく
必要最低限の設備にして、できるだけお手入れをしやすい浴室を意識しました。2段になっていたカウンターを1段にしたり、手すりを現時点で必要な、浴槽内にのみ設置したり、凹凸をできる限り少なくし、お掃除が簡単にできるように工夫をしています。また、以前はカウンター下に配置されお掃除しにくかった排水口ですが、浴槽横に位置したことで手元を確実に見ることができ、お掃除が簡単になりました。
洗面所・洗面化粧台
リフォームのポイント
- 収納力アップ
- デザイン・空間コーディネート
今回のリフォームで一番のポイントは洗面脱衣室。梁補強をして空間を広げるだけではなく、洗面台や洗濯機置き場などの配置も変えることで、動線もよく考えられた使いやすい洗面室になりました。もともとの洗面台は開き扉のため、使い勝手が良くなかったですが、引き出しタイプを設置したことで、出し入れもしやすくなりました。特に、トール収納も設置したことで、今までは可動棚に置いていたタオル類なども収納することができ、来客時にも安心して洗面室を使っていただけます。
お客さまの声
築20年の中古の戸建てを購入しました。それに伴い、水回りを中心にリフォームをして快適な生活を送りたいと考えました。
このお店が
施工しました !
株式会社グッディーホーム
- 所在地
-
〒180-0013 東京都 武蔵野市 西久保3-8-1
- 電話番号
- 営業時間
-
09:00~17:30
- 定休日
-
年中無休 (GW、夏季、年末年始は定休となります。)
- FAX
-
0422-60-0595
- 公式
サイト
- 住宅リフォーム事業者団体登録
- 駐車場あり
- 女性プランナー
リフォームのご計画に
お役立てください









一言コメント
弊社はお客様が求めているライフスタイルや価値観にあった空間づくりのお手伝いを地域密着型で提供するリフォーム会社です。
きめ細かな対応を心がけ「街の住医」として地域社会に貢献していきたい考えております。
ご相談からプランの提案、お見積り、工事、アフターフォローまで責任を持って対応致します!
※対応エリア
武蔵野市、三鷹市、小金井市、杉並区、調布市、西東京市、府中市、国分寺市、国立市、小平市、東久留米市
【一部】 練馬区、中野区、世田谷区