The Rooms
築41年以上/子どもとの暮らし
木毛セメント板で仕上げた壁面・針葉樹合板の天井と素材感の強い主寝室へ。子供部屋のクローゼットに対する空間に書斎カウンターを設け、板の間と畳仕上げの床が異色でありながら落ち着きある和室空間となりました。間接照明とダウンライトは調光調色可能のため南からの採光はないながらも寝室という点からライティングの方を重視しています。構造が影響しない為、間仕切り位置は南に移せる点で部屋サイズはアップしています。
部屋サイズ6畳にダウンとしつつも廊下側の納戸と一体の部屋にし、納戸部分にカウンターを設け学習デスクにしています。そのためベッドを置いても部屋を広く使用できます。縁側が洗濯スペースとなることから、採光に配慮しつつプライベートを両立するため、アイアンフレームのスリガラス調の大開口スライド間仕切を採用いただきました。ダーク色のインテリアにアイアンフレームのブラックがアクセントとなり、主寝室全く異なる息子様の男っぽさあるカッコいいマイルームが仕上がりました。
子供室・縁側への動線を確保するため、台所用ワゴンと冷蔵庫の設置スペースを主寝室側の空間の一部を追いやって確保しています。壁内に後退したため、この出入口の出入に伴う障害物がなくなりキッチン側空間も整然と納まりました。
縁側のリフォーム後。こちらは主寝室同様に針葉樹合板の天井と木毛セメント板で仕上げていますが、床が無垢のスプーン加工材をしようしていることから、見た目にも楽しく足裏の感覚も気持ちの良い縁側になりました。アイアン触れむと建具、物干しのブラックが統一感あるアクセントとなっております。
改修後の間取り。主寝室に入り込んだ、キッチン側ワゴンと冷蔵庫の設置空間および子供室のクローゼットと書斎カウンターによる間仕切と配置によって2つをプライベート感高い居室にリフォームしております。子供室の学習用カウンターもポイントです。
このお店が
施工しました !
太陽リビング株式会社 お店の詳細を見る
電話で相談するTEL0120-64-2126受付時間:09:00~17:00
定休日:日曜
(年末年始・お盆・GW連休あり)
上記の電話番号にかからない場合は
0268-64-2126におかけください。
WEBでのお問い合わせはこちら
リフォーム概要
- 構造
- 木造
- 築年数
- 築41年以上
- 同居するご家族の人数
- 3
- 施工地
- 長野県 / 東御市
- 施工期間
- 約30日
- リフォーム総額
-
約872万円 部位別の費用
- リフォーム箇所
- 浴室・お風呂、寝室・子ども部屋・趣味部屋、窓・サッシ
- リフォーム範囲
- 水まわり機器入れ替えリフォーム
※使用製品などは部位別の施工事例詳細ページでご覧ください
部位別のリフォーム内容
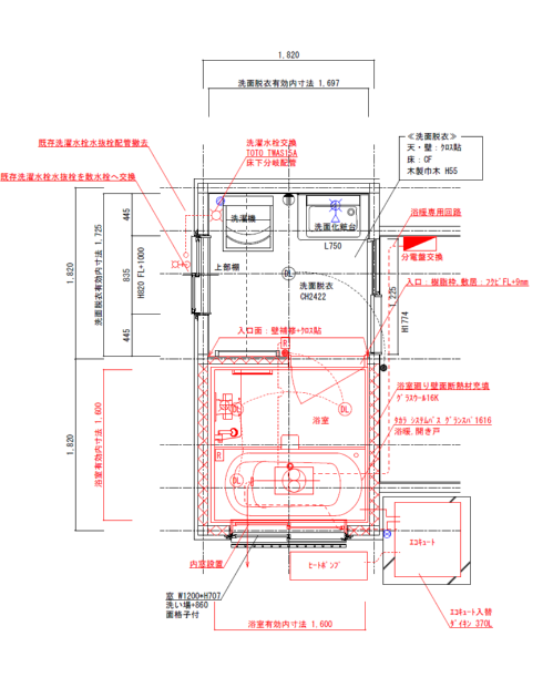
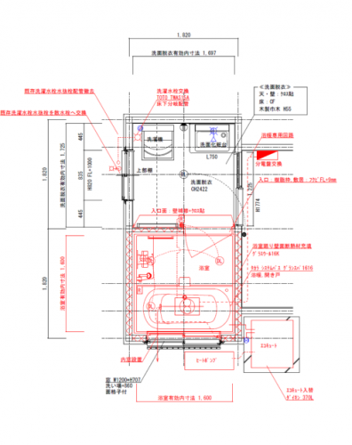
浴室・お風呂
リフォームのポイント
- デザイン・空間コーディネート
- 家事らく
今回のテーマ「個の空間」のひとつバスルームは、団らん空間の大切さ同様に、家の中で一人になれる大切なプライベート空間であり、これまでは一日の体を流す空間でしたが、体の疲れも洗い流す「癒し空間」として、ご家族でご相談を繰り返しメーカーや色合いを決めていただきました。落ち着いたシックな色合いはこれまでのバスルームになかった落ち着きある空間になりました。ホーローのお掃除性や断熱性、アクセントパネルのデザイン性は商品の決め手となりました。内窓も設置し、より快適性もアップ。補助金も獲得いただく事もできました。
その他
リフォームのポイント
- 風通し
- デザイン・空間コーディネート
家族にとって、LDKなど集まる共有空間にこだわりを持つのと同様に、プライベートルームにもこだわりを持つことは重要でありながら、予算や優先順位でシンプルになりやすい。今回のリフォームではこのプライベートルームにご家族のこだわり、素材や色合い、質感といったご要望にお応えしつつ、襖続きの2室の和室をプライベートの空間として動線や採光・ライティングにも配慮した間取り・インテリア提案をさせていただきました。ご夫婦の主寝室とお子様それぞれのご要望から完成した2つのThe Rooms。
お客さまの声
子供の成長と共に
息子が親との時間だけでなく個の時間も必要になる年齢に差し掛かりました。寝室も和室に布団を引いて家族3人川の字で寝ることも心残りではありますが、いよいよマイルームを作ってあげることができました。私たちも寝室は私たちなりに息子は息子なりにこのリフォームに対して、こだわって希望をお伝えしましたが、素材や色合いを汲み取っていただき、イメージ通りの部屋を持つことができました。今回のリフォームに伴って、浴室のリフォームもご依頼しました。我が家のプライベート空間で新しい生活がスタートすることを嬉しく思います。
このお店が
施工しました !
太陽リビング株式会社
- 所在地
-
〒389-0515 長野県 東御市 常田444-27
- 電話番号
- 営業時間
-
09:00~17:00
- 定休日
-
日曜 (年末年始・お盆・GW連休あり)
- FAX
-
0268-64-2317
- 公式
サイト
- 住宅リフォーム事業者団体登録
- リフォームローン利用可能
- 駐車場あり
- インテリア相談可
同じ都道府県内で部位別にリフォーム事例を探す
リフォームのご計画に
お役立てください












一言コメント
東御市の東御中央公園近くにある住宅設備会社で、東信地域の皆さまの水まわりのトラブルやお住まいのリフォームをご提案しています。
お客様に信頼していただき、ご満足いただけるリフォーム・リノベーションを心掛け、お客様の人生に寄り添って「一生お付き合いいただけるパートナー」を目指し、社員一同真剣に向き合います。
各メーカーの設備をそろえ、いつでも「みて」「触れて」「体感できる」ショールームを併設していますので、お気軽にお越しください。