大工の棟梁だったお父様が、30年前ご家族のために建てたお家をリニューアル ~小金井市 M様~
築21年~30年
システムキッチン トレーシア I型2700
カウンター:アクリル人造大理石
ガスコンロ再利用
食器洗乾燥機:なし
水洗:浄水機能付タッチレスハンドシャワー水栓
シンク:家事らくシンク(ホワイト)
吊戸棚(冷蔵庫上含)
電動昇降吊戸棚(食器乾燥機能付)
かくせるホーローボックス
カラー組み合わせ
扉:ホワイト
引手:レール引手 ブラック
扉モール:ブラック
カウンター:モデレートブラック
キッチンパネル:ドラマチックホワイト
台輪カラー:ブラック
床下収納の蓋もチーク材で。
カウンターユニットとトールユニットも採用されました。
右から
・カウンターユニット
3段引き出し
間口60cm
・家電収納ユニット
家電収納+スライド
間口90cm×高さ85cm
・カウンターユニット
1段引き出し+収納ワゴン付
間口75cm×高さ85cm
・トールユニット
高さ2300×幅900×下部三段引き出し
いずれもキッチンと同じカラーです。
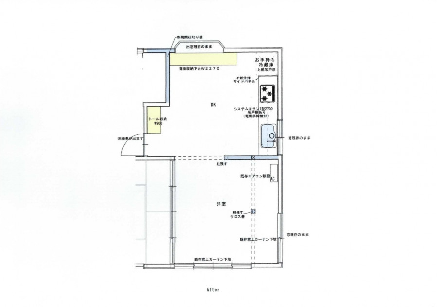
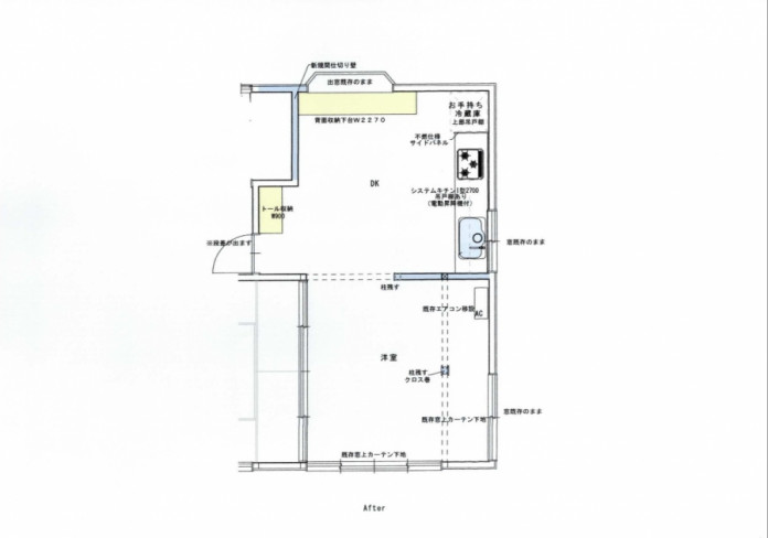
施工後
和室との建具を撤去し、出来る範囲で開口部を広げました。
床も段差があったのですが、レベル調整をし段差も解消出来ました。
大切なお父様が建てたお家をなるべく残してリニューアルしました。
このお店が
施工しました !
株式会社 スペース・エム ~おかげさまで施工事例100件超えました~ 【子育てグリーン住宅支援事業】【先進的窓リノベ2025事業】に登録しています。 タカラスタンダード ユニットバス・システムキッチンのリフォーム・その他 無料にて御見積いたしますので、お気軽にお問い合わせください。 お店の詳細を見る
電話で相談するTEL042-644-6206受付時間:09:00~18:00
定休日:日曜
(祝日▪年末年始・GW・夏季休暇)
WEBでのお問い合わせはこちら
リフォーム概要
- 構造
- 木造
- 築年数
- 築21年~30年
- 施工地
- 東京都 / 小金井市
- 施工期間
- 約3週間
- リフォーム総額
-
約470万円 部位別の費用
- リフォーム箇所
- キッチン・台所、リビング、ダイニング
- リフォーム範囲
- 水まわり機器入れ替えリフォーム、床・壁・天井も含むリフォーム
※使用製品などは部位別の施工事例詳細ページでご覧ください
部位別のリフォーム内容
キッチン・台所
リフォームのポイント
- 収納力アップ
- デザイン・空間コーディネート
- 家事らく
閉鎖的だったキッチンを耐震のことも考えながら
何度も打ち合わせをさせていただき、圧迫感のない空間にしました。
各メーカーをご覧になりご検討いただいた結果、
弊社が推奨しましたタカラスタンダード商品を採用されました。
床は弊社が得意とする無垢材のチーク材です。
和室と段差なくつなげました。
仕上げは自然オイル仕上げ。
心地よく過ごしてくださっています。
その他
リフォームのポイント
- バリアフリー
- デザイン・空間コーディネート
- 家事らく
隣接していた和室もリニューアルさせていただき、ダイニングキッチンとつなげることで
開放的な空間になりました。
お客さまの声
家事の負担が軽減。
工事前は閉鎖的な空間で家事・食事をしていました。
工事後は広い空間になり、動線・収納力も良くなり使いやすくなりました。
お掃除もしやすく家事の負担も減りました。
キッチンがとても良い感じになってびっくりしました。
このお店が
施工しました !
株式会社 スペース・エム ~おかげさまで施工事例100件超えました~ 【子育てグリーン住宅支援事業】【先進的窓リノベ2025事業】に登録しています。 タカラスタンダード ユニットバス・システムキッチンのリフォーム・その他 無料にて御見積いたしますので、お気軽にお問い合わせください。
- 所在地
-
〒192-0911 東京都 八王子市 打越町344-14 京王北野マンションA-106
- 電話番号
- 営業時間
-
09:00~18:00
- 定休日
-
日曜 (祝日▪年末年始・GW・夏季休暇)
- FAX
-
042-644-6279
- 公式
サイト
- リフォームローン利用可能
- 駐車場あり
- 女性プランナー
- インテリア相談可
同じ都道府県内で部位別にリフォーム事例を探す
リフォームのご計画に
お役立てください









一言コメント
おかげさまで八王子市でのタカラスタンダード製品施工実績NO,1になりました。
昭和63年に株式会社として設立し、36周年を迎えました。スタッフは女性3人と男性2人の設計・施工の建築会社です。
自然素材を多用した家作りを心がけております。
お気軽にご相談ください。
※【子育てグリーン住宅支援事業】【先進的窓リノベ2025事業】に登録しています。
※八王子市の居住環境整備補助金につきましては、予算の上限に達したため令和7年10月8日をもって今年度の交付申請受付を終了しました。