きれいなトイレで毎日ウキウキ~。お掃除するのが楽しくなりました。
築31年~40年/シニアの暮らし/二人暮らし
便器はタンクを隠せるタイプが好みでティモニCシリーズを採用。腰壁と床はトイレパネルを採用して清潔感が増しました。腰パネルは高さが1100mmで手洗いの水撥ねも安心です。
L型手すりは再度取付、リモコンとペーパーホルダーはホーロパネル用で磁石と吸盤式で移動も可能です。
カウンター収納上部壁もトイレパネルを貼りました。
トイレパネル 周辺機器取付まで完了です。この後設備屋さんにて便器取付です。
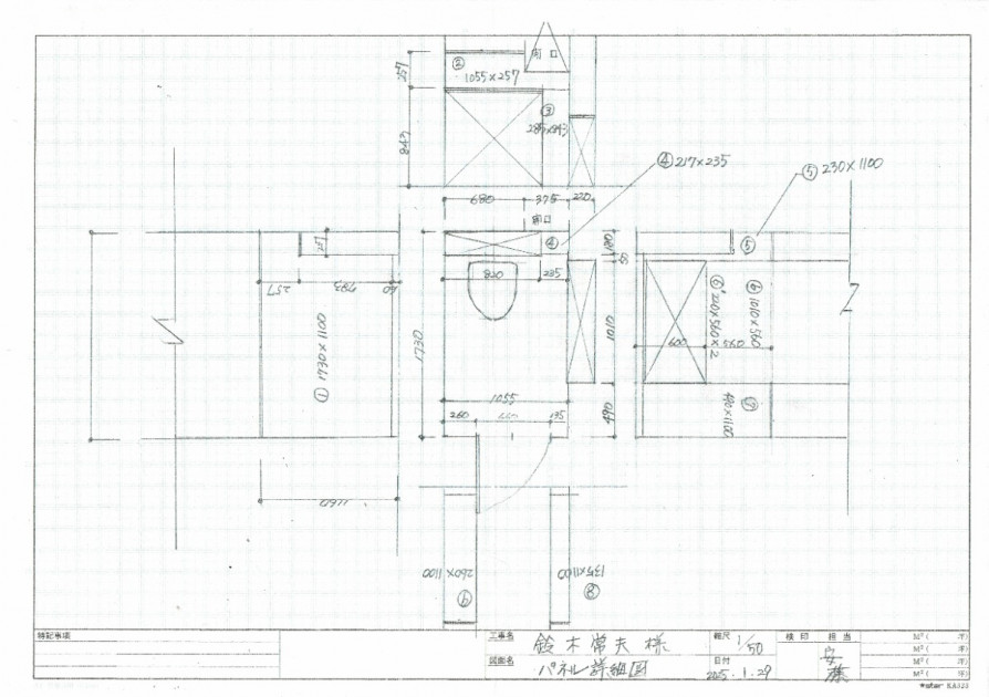
腰壁パネル図面です。
このお店が
施工しました !
ハートリフォームあさひ (株式会社朝日) この春に事務所を引越しました。立派な事務所やショールームはコストが掛かります。立派な事務所やショールームが無いだけコストをお値打ちにご提供することが出来ます。 お店の詳細を見る
電話で相談するTEL0120-32-2374受付時間:08:00~18:00
定休日:日曜・水曜
(事前にご連絡いただければ日曜日・水曜日でも対応させていただきます。)
上記の電話番号にかからない場合は
0565-32-2373におかけください。
WEBでのお問い合わせはこちら
リフォーム概要
- 構造
- S造
- 築年数
- 築31年~40年
- 同居するご家族の人数
- 2
- 施工地
- 愛知県 / みよし市
- 施工期間
- 約4日
- リフォーム総額
-
約60万円 部位別の費用
- リフォーム箇所
- トイレ
- リフォーム範囲
- 床・壁・天井も含むリフォーム
※使用製品などは部位別の施工事例詳細ページでご覧ください
部位別のリフォーム内容
トイレ
リフォームのポイント
- デザイン・空間コーディネート
- 家事らく
腰壁、床共にタカラさんのホーロートイレパネルを貼ることでお掃除らくらく、清潔なトイレトイレです。便器はティモニCシリーズでタンクが隠れてスッキリしています。正面両サイドには小さいながらも収納があり、とても便利です。また、今回は既存の収納カウンターを残してパネルを貼ることが出来たので、お気に入りのこだわりのポイントです。
お客さまの声
とっても満足の行くトイレになりました。
ずっと前からタカラさんのトイレパネルが気になっていました。意を決してタカラさんのショールームに訪れて、ホーローパネルの良さを確信しました。主人も賛同してくれて、タカラさんのティモニUシリーズの便器とホーロー製の腰パネルと床パネルを取り付けることに決めました。業者はタカラさんで紹介いただいたハートリフォームあさひさんで見積いただき、予想以上に予算オーバーになり、何度もパネルの貼り方に工夫いただき、最終的には自分の思い通りのプランに到達できました。そして、とっても満足の行くトイレになりました。
このお店が
施工しました !
ハートリフォームあさひ (株式会社朝日) この春に事務所を引越しました。立派な事務所やショールームはコストが掛かります。立派な事務所やショールームが無いだけコストをお値打ちにご提供することが出来ます。
- 所在地
-
〒471-0038 愛知県 豊田市 宮上町7-108-4
- 電話番号
- 営業時間
-
08:00~18:00
- 定休日
-
日曜・水曜 (事前にご連絡いただければ日曜日・水曜日でも対応させていただきます。)
- FAX
-
0565-32-2681
- 公式
サイト
- 駐車場あり
- 女性プランナー
- インテリア相談可
同じ都道府県内で部位別にリフォーム事例を探す
リフォームのご計画に
お役立てください








一言コメント
リフォームはお客様のプライバシーまで見てしまう業種です。価格だけにこだわるのではなく、お客様の話をいかに聞いてくれる業者であるかが大切なポイントであると思います。とことん話をして信頼できる業者であるか見極めることだと思います。そして、お客様のお困り事を自分の事のように思って対応してくれるかだと思います。だから、決して安売りはしません。そして、必要以上に高くは頂きません。 そんな考えで対応させていただいております。