夫婦で料理を楽しむ 洗練された大人のLDK空間
築31年~40年/子どもとの暮らし
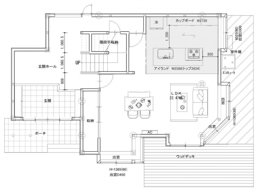
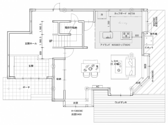
回遊のしやすいアイランドキッチン。広い作業台と十分な通路幅のおかげで、ご夫婦で並んで立ってもストレスなく作業ができます。すれ違う際にも、お互いがぶつかることはありません。
下がり壁を撤去し開放的な空間に。
新しく生まれ変わったLDKは、重厚感あふれるアイランドキッチンを備え、白×グレーの壁紙と照明計画のバランスが絶妙。
L字からアイランド型へ。
排気ダクトの設置により、キッチン上部は下がり天井となりましたが、木目調クロスを採用することで、キッチンとリビングダイニングを緩やかに区切りながら、空間に程よいアクセントを加えています。
空間を圧迫していたPCスペースやTVボードを取り払い広々とした空間へ。
ご夫婦がショールームで一目惚れしたキッチン、ブラック×ウッドを基調としたクールな色彩に合わせて内装もコーディネートしました。
キッチンは夫婦で作業しやすいアイランド型に。十分な通路幅を設けてぶつからないよう配慮しました。和室をリビングと繋げて広々とした空間へ。収納を設け、TVを壁掛けにするなどしてすっきりとした暮らしができるようご提案しました。
中高生のお子様達の荷物をすっきりと納め、生活感を排除。機能性と利便性を兼ね備えた収納です。
抜くことが難しい柱だったため、天井に大きな桁を設置し荷重を分散させました。柱を抜いたことで視界が広がり、テレビを壁掛けにして床まわりをすっきりとさせた。さらに、大きなミラーが空間を広く見せると同時に、身支度にも便利な存在として活躍しています。
収納庫内にWii-Fiルーターを隠し、PCスペースに。生活感を排して家をすっきりさせる、使い勝手の良い配慮が散りばめられています。
このお店が
施工しました !
OLIVERリフォーム お店の詳細を見る
電話で相談するTEL0120-47-1152受付時間:09:00~18:00
定休日:火曜・水曜
上記の電話番号にかからない場合は
076-492-6628におかけください。
WEBでのお問い合わせはこちら
リフォーム概要
- 構造
- 木造
- 築年数
- 築31年~40年
- 同居するご家族の人数
- 4
- 施工地
- 富山県 / 高岡市
- 施工期間
- 約60日
- リフォーム総額
-
約943万円
- リフォーム箇所
- キッチン・台所、リビング、ダイニング、窓・サッシ
- リフォーム範囲
- 水まわり機器入れ替えリフォーム、床・壁・天井も含むリフォーム、間取り変更・増減改築を含むリフォーム
※使用製品などは部位別の施工事例詳細ページでご覧ください
部位別のリフォーム内容
キッチン・台所
リフォームのポイント
- バリアフリー
- 収納力アップ
- 風通し
- デザイン・空間コーディネート
- 家事らく
和室を取り込んで広々としたLDK空間を実現。キッチンは2人で作業しやすいアイランド型に配置変更し、収納を充実させて生活感を抑え、すっきりとした暮らしを叶えました。
その他
リフォームのポイント
- バリアフリー
- 収納力アップ
- 風通し
- デザイン・空間コーディネート
- 家事らく
広いLDKを実現するため、和室との間にあった柱を取り除きました。天井に大きな桁を設置し、荷重を分散させる補強工事を施すことで、安心して生活できる開放的な空間を実現。
そして、すっきりとした空間づくりを念頭に置いてデザインされたLDKの一角、リビングに設けられた3枚引込戸の収納スペースには、中高生の子どもたちの荷物がひとまとめに。さらに収納庫内にWii-Fiルーターを隠し、奥様のPCスペースとしても利用できる設計となっています。
お客さまの声
キッチンに立つストレスが激減!快適に料理ができます。
キッチンは夫婦2人で立つことが多く、行き違いの度にぶつかったりしてイライラすることも多かったです。リフォームを終えて、使いやすさにまず驚きました!回遊のしやすいアイランドキッチンのおかげで、夫婦で並んで立ってもストレスなく作業ができるようになりました。デザインにもこだわり、洗練された空間がとても気に入ってます。
子供達の荷物もすっきりと収納され、テレビを壁掛けにしたことで空間が広くなりました。窓も全て入れ替えたので遮音性・断熱性能も高まり、とても快適に過ごせます。
このお店が
施工しました !
OLIVERリフォーム
- 所在地
-
〒939-8211 富山県 富山市 二口町3丁目2-14
- 電話番号
- 営業時間
-
09:00~18:00
- 定休日
-
火曜・水曜
- FAX
-
076-492-6639
- 公式
サイト
- リフォームローン利用可能
- 駐車場あり
- 女性プランナー
- インテリア相談可
同じ都道府県内で部位別にリフォーム事例を探す
リフォームのご計画に
お役立てください











一言コメント
富山県内4店舗(富山市・高岡市・黒部市)、石川県内2店舗(金沢市・野々市市)のネットワークで迅速対応いたします!
住まいでお困りごとございませんか?小さな修理から、キッチンやお風呂、トイレなどの設備機器の入れ替え、間取り変更を伴うリノベーションまで幅広くご対応させていただきます!
おしゃれでかっこいい家にしたい、女性目線で提案してほしい、断熱施工で快適な家にしたい…など経験豊かな建築士やインテリアコーディネーターが様々な視点でご提案させていただきます!
ぜひお気軽にお問い合わせください。