家族の暮らしにフィットする、整う住まいのかたち
築21年~30年/2世帯での暮らし/子どもとの暮らし
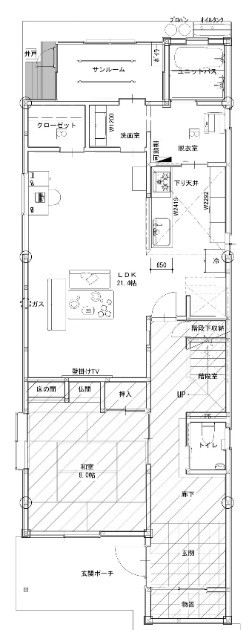
北側の掃き出し窓があった場所を収納にすることで、断熱性が高まり、今では家族が心地よく快適に過ごせる空間へと変わりました。
キッチンは下がり天井を取り入れて、ゆるやかに空間を分けました。ほどよいメリハリで、心地よい広がりも感じられます。使いづらかった扉付きのパントリーはオープンの可動棚へ変更。
テレビは壁掛けにしてサイズアップ。さらに、キッチンの吊り戸棚をなくしたことで空間に広がりが生まれました。これにより、料理をしながらテレビも楽しめる、快適なキッチン空間が実現しました。
また、リビングとキッチンのクロスをグレーでリンクさせ、空間にさりげない一体感を演出。シンプルながらも洗練された印象に。
窓は最小限にして冷気をシャットアウト。マグネット仕様で収納を自由にアレンジできる空間は、ご家族の多いU様邸にぴったりのバスルームです。
洗面室は年頃の娘さんへの配慮から、脱衣室と分けて独立した空間を新たに設けました。これまで一体だった洗面・脱衣スペースを分離することで、プライバシーが守られ、家族それぞれが気兼ねなく利用できます。洗面化粧台は、2人並んでもゆったり使える幅1200mmタイプを採用し、収納力もたっぷりです。朝の身支度もスムーズに行える、機能的で快適な空間へと生まれ変わりました。
洗濯から物干しまでを一直線につなげた間取りで、家事の流れがスムーズに。毎日の洗濯がぐんとラクになりました。
お掃除のしやすさを追求したトイレ空間。サッと拭くだけでお手入れも簡単。気になるニオイも調湿壁材で解消。
ご家族の多いU様邸では、洗面と脱衣室を分けて独立した空間に。プライバシーを確保し、家族みんなが気兼ねなく使えるようにしました。
キッチンは吊り戸棚をなくして視界すっきり。扉のないオープンなパントリーで、家事動線もスムーズに。
さらに、寒さが気になっていたリビングは、北側の掃き出し窓を収納に変えることで断熱性がアップ。家族が心地よく過ごせる空間になりました。
このお店が
施工しました !
OLIVERリフォーム お店の詳細を見る
電話で相談するTEL0120-47-1152受付時間:09:00~18:00
定休日:火曜・水曜
上記の電話番号にかからない場合は
076-492-6628におかけください。
WEBでのお問い合わせはこちら
リフォーム概要
- 構造
- 木造
- 築年数
- 築21年~30年
- 同居するご家族の人数
- 6
- 施工地
- 富山県 / 高岡市
- 施工期間
- 約70日
- リフォーム総額
-
約1,344万円
- リフォーム箇所
- キッチン・台所、浴室・お風呂、洗面所・洗面化粧台、トイレ、リビング、ダイニング、脱衣所
- リフォーム範囲
- 水まわり機器入れ替えリフォーム、床・壁・天井も含むリフォーム、間取り変更・増減改築を含むリフォーム
※使用製品などは部位別の施工事例詳細ページでご覧ください
部位別のリフォーム内容
キッチン・台所
リフォームのポイント
- バリアフリー
- 収納力アップ
- 風通し
- デザイン・空間コーディネート
- 家事らく
大幅な間取り変更こそありませんが、断熱性能を高めるために北側の窓をなくして収納スペースに変更。さらに、閉鎖的だったキッチンは吊り戸棚を撤去し、開放感を演出しながらも下がり天井でさりげなく空間を区切るなど、空間の心地よさと使いやすさを両立した工夫が施されています。
浴室・お風呂
リフォームのポイント
- バリアフリー
- 収納力アップ
- 風通し
- デザイン・空間コーディネート
- 家事らく
冷気が入り込み、寒かった浴室は窓を最小限にして暖かなユニットバスへと変わりました。段差も解消されバリアフリーに。洗面台と色を合わせたアクセントパネルが空間に統一感をもたらします。
洗面所・洗面化粧台
リフォームのポイント
- バリアフリー
- 収納力アップ
- 風通し
- デザイン・空間コーディネート
- 家事らく
広いサンルームに独立した洗面室を設け、家族全員が使いやすい空間に。 洗濯から物干しまで一直線に繋がる間取りで家事の流れもスムーズです。洗面化粧台は、2人並んでもゆったり使える幅1200mmタイプを採用し、収納力もたっぷりです。朝の身支度もスムーズに行える、機能的で快適な空間へと生まれ変わりました。
トイレ
リフォームのポイント
- バリアフリー
- 収納力アップ
- デザイン・空間コーディネート
- 家事らく
2世帯でお住まいのU様邸では、誰もが気持ちよく使える空間を目指し、トイレの床にはお手入れがしやすく清潔感を保ちやすいフロアタイルを採用。さらに、背面には調湿壁材をあしらい、消臭・調湿効果をプラスしました。
その他
リフォームのポイント
- バリアフリー
- 収納力アップ
- 風通し
- デザイン・空間コーディネート
- 家事らく
ご家族の多いU様邸では、洗面と脱衣室を分けて独立した空間に。プライバシーを確保し、家族みんなが気兼ねなく使えるようにしました。
キッチンは吊り戸棚をなくして視界すっきり。扉のないオープンなパントリーで、家事動線もスムーズに。
さらに、寒さが気になっていたリビングは、北側の掃き出し窓を収納に変えることで断熱性がアップ。家族が心地よく過ごせる空間になりました。
お客さまの声
とにかく掃除がしやすい!快適な住空間になり家族の会話も増えました。
リフォームしてからはすごく掃除がしやすくて家事が楽になりました。洗面室と脱衣室が分かれて気兼ねなく使えるようになったし、家事動線がスムーズです!
キッチンは閉鎖的で孤独感を感じていましたが、オープンになり家族との会話も増えました。料理をしながらテレビも楽しめます。
窓を小さくしたり、北側に収納を配置したことでとても暖かいです!生活が整って、家族みんなが快適に過ごせるようになりました。自然とみんなリビングに集まるようになって家族の時間が増えましたよ。
このお店が
施工しました !
OLIVERリフォーム
- 所在地
-
〒939-8211 富山県 富山市 二口町3丁目2-14
- 電話番号
- 営業時間
-
09:00~18:00
- 定休日
-
火曜・水曜
- FAX
-
076-492-6639
- 公式
サイト
- リフォームローン利用可能
- 駐車場あり
- 女性プランナー
- インテリア相談可
リフォームのご計画に
お役立てください











一言コメント
富山県内4店舗(富山市・高岡市・黒部市)、石川県内2店舗(金沢市・野々市市)のネットワークで迅速対応いたします!
住まいでお困りごとございませんか?小さな修理から、キッチンやお風呂、トイレなどの設備機器の入れ替え、間取り変更を伴うリノベーションまで幅広くご対応させていただきます!
おしゃれでかっこいい家にしたい、女性目線で提案してほしい、断熱施工で快適な家にしたい…など経験豊かな建築士やインテリアコーディネーターが様々な視点でご提案させていただきます!
ぜひお気軽にお問い合わせください。