母と愛犬たちと過ごす心温まる家
2世帯での暮らし/ペットとの暮らし
キッチン 別の角度からの写真です。
2階のお部屋のフローリングには、愛犬のためにワンラブフロアを採用しています。ワンラブフロアは、ペットの足に優しく、傷が付きにくいので安心です。また、天井にはホスクリーンを設置しており、天候に左右されることなくお洗濯物を干すことができます。普段は収納できるので、お部屋もすっきりと保てます。
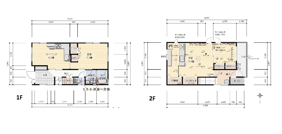
こちらはリフォーム後の図面です。主に2階を中心に改装を行いましたが、1階にも高齢のお母さまのための細やかな配慮が施されています。特に、元々冷蔵庫が置かれていたキッチン横の壁を開き戸に変更したことで、廊下を通らずに部屋同士の行き来がスムーズになり、動線がより便利になりました。
このお店が
施工しました !
太豊建設株式会社 お店の詳細を見る
電話で相談するTEL0120-031-866受付時間:08:30~18:30
定休日:日曜
(祝祭日)
上記の電話番号にかからない場合は
03-3786-3880におかけください。
リフォーム概要
- 構造
- 木造
- 同居するご家族の人数
- 3
- 施工地
- 東京都 / 品川区
- 施工期間
- 約45日
- リフォーム総額
-
約1,000万円 部位別の費用
- リフォーム箇所
- キッチン・台所、洗面所・洗面化粧台、リビング、ダイニング、寝室・子ども部屋・趣味部屋
- リフォーム範囲
- 水まわり機器入れ替えリフォーム、床・壁・天井も含むリフォーム、間取り変更・増減改築を含むリフォーム
※使用製品などは部位別の施工事例詳細ページでご覧ください
部位別のリフォーム内容
キッチン・台所
リフォームのポイント
- デザイン・空間コーディネート
- 家事らく
2階は息子さんご夫婦のための上質なLDKに改装。壁をなくし開放感を演出、空間はお気に入りの家具に調和するよう設計されました。中心となるキッチンは「トレーシア」を採用。美しいデザインと高い機能性で、調理から片付けまでを効率的にサポート。回遊性のある動線や充実の収納で家事がぐんと快適に。ペンダントライトが上質な雰囲気を添え、洗練された居心地の良い空間が完成しました。
洗面所・洗面化粧台
リフォームのポイント
- デザイン・空間コーディネート
- 家事らく
2階の階段を上がってすぐの場所に、愛犬専用のタカラファミーユを設置しました。散歩やバルコニーから戻ったあと、1階のお風呂場まで行かずに足洗いやケアができるため、家中を清潔に保てて家事の手間も軽減。立ち上がりのしやすい高さや広めのボウルで、犬にも飼い主にもやさしい工夫が詰まっています。愛犬との暮らしがより快適になり、毎日がちょっと楽しく、ちょっとラクになりました。
その他
お客さまの声
住むほどに感じる幸せ。家族に寄り添うリフォームをありがとう
高齢の母のために1階は動きやすい間取りに。2階は私たち夫婦と愛犬たちのために、理想の住まいへと生まれ変わりました。お気に入りの家具に合わせたLDKや、家事が驚くほど楽になった「トレーシア」キッチン、愛犬の足にも優しいフローリング、散歩帰りに便利な洗面台…。どの空間にも想いが詰まっていて、毎日が本当に心地よく、暮らすたびに幸せを実感しています。お願いして本当によかった、と心から思っています。
このお店が
施工しました !
太豊建設株式会社
- 所在地
-
〒142-0042 東京都 品川区 豊町5-16-22
- 電話番号
- 営業時間
-
08:30~18:30
- 定休日
-
日曜 (祝祭日)
- FAX
-
03-3786-3890
- 公式
サイト
リフォームのご計画に
お役立てください








一言コメント
タイホウ建設は品川区豊町にある工務店です。創業して2024年で60年を迎えました。
父の代からずっと地域の皆様に欠かせない存在となれるように、小さな工事から新築まで文字通り「住まいの町医者」として地域の生活を守って参りました。
今後は100年企業を目指して、安心、安全な住まいのご提供と、その先にあるお客様満足度のさらなる向上、その結果、地域から必要とされる存在であり続ける地元工務店を、これからも目指して参ります。