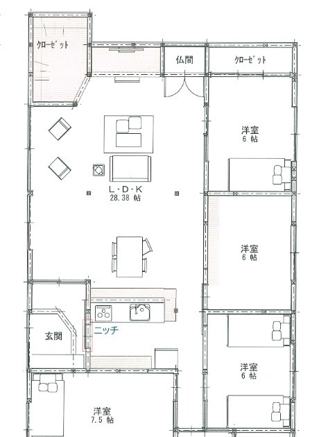
キッチンを配し、2Way玄関としてキッチンへの入り口としました。
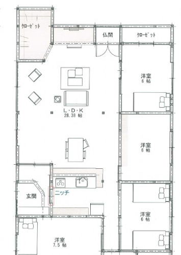
廊下も取り込んだ広いLDK空間となりました。
対面キッチンからリビングを臨みます。
キッチン横にはニッチを設けました。
天井を上げ、開放感のあるLDKになりました。
床の間をTVスペースとして、欄間を再利用しています。
廊下からの出入り口だった部分に重要な柱は残りましたが、木を走らせアクセントとしました。
広縁の掃き出し窓が、一体化することで直接光が差し込み明るいLDK。
大開口の断熱窓。
広縁・和室二間・廊下・玄関ホールも取り込んだLDKとなりました。
リフォーム概要
- 構造
- 木造
- 築年数
- 築41年以上
- 同居するご家族の人数
- 5
- 施工地
- 福岡県 / 飯塚市
- 施工期間
- 約3ヶ月
- リフォーム総額
-
約2,400万円 部位別の費用
- リフォーム箇所
- キッチン・台所、リビング、ダイニング、窓・サッシ
- リフォーム範囲
- 間取り変更・増減改築を含むリフォーム
※使用製品などは部位別の施工事例詳細ページでご覧ください
部位別のリフォーム内容
キッチン・台所
リフォームのポイント
- バリアフリー
- 収納力アップ
- デザイン・空間コーディネート
- 家事らく
狭く暗かったダイニングは南側和室とつなげ、光と広がりのあるLDKに再構成。老朽化した水まわりを一新しました。玄関からリビングへ通じるメインの入り口と、キッチンへ直接行ける引戸の2way玄関は、買い物動線を考慮。LDKから洗濯機のある洗面室にも近い場所にキッチンを配置した、家事らく動線としました。
キッチンの背面収納には木目をあしらい、和の残るリビングに統一感を持たせました。
その他
リフォームのポイント
- バリアフリー
- 収納力アップ
- 風通し
- デザイン・空間コーディネート
- 家事らく
ご実家を80代のご両親と娘様家族が安心して同居できる住まいにしたいとのご相談でした。ご両親の体力面を考慮し「住みながら工事ができるか」の不安も抱えておられました。
土壁の隙間や全体的な老朽化から、断熱・バリアフリーを整えました。工事中は動線を工夫し、生活への負担を最小限に。既存の柱や意匠を活かしつつ、多世代が安心して暮らせる住まいを実現しました。
お客さまの声
安心して工事を任せられました
住みながらのリフォームも、生活動線を配慮いただき安心して工事を任せられました。広く明るくなったLDKは家族が自然に集う場となり、子どもも両親も快適に過ごしています。既存の柱や木材を活かした仕上がりに温かみを感じ、大変満足しています。キッチンも新しくなり、家事も楽しくなりました。
このお店が
施工しました !
株式会社 筑豊住建
- 所在地
-
〒820-0068 福岡県 飯塚市 片島2-5-10
- 電話番号
- 営業時間
-
08:30~17:30
- 定休日
-
日曜・その他 (祝日・盆・年末年始)
- FAX
-
0948-29-5003
- 公式
サイト
- 住宅リフォーム事業者団体登録
- 駐車場あり
- 女性プランナー
- インテリア相談可
リフォームのご計画に
お役立てください













一言コメント
これからの人生を楽しむ家づくり。
私たちが掲げているコンセプトは「おもてなしリフォーム」。お客さまがご希望される箇所はもちろんのこと、将来的に問題が起こる可能性のある箇所の補修や、暮らしやすい間取りなどを、住まいのプロであるアドバイザーがわかりやすくご提案いたします。
「悪いところが直って良かった」で終わるのではなく、「直った上に暮らしやすくなった」「リフォームして生活が楽しくなった」と思っていただけるように。一段上のご満足を目指して、誠実に対応いたします。