AKISHIMA BASE~男の隠れ家~
築31年~40年
このお店が
施工しました !
株式会社リビングサプライ お店の詳細を見る
電話で相談するTEL042-595-9125受付時間:09:00~18:00
定休日:日曜・その他
(第2土曜日、祝祭日、GW、夏季、年末年始)
WEBでのお問い合わせはこちら
リフォーム概要
- 構造
- RC造
- 築年数
- 築31年~40年
- 同居するご家族の人数
- 1
- 施工地
- 東京都 / 昭島市
- 施工期間
- 約1ヶ月
- リフォーム総額
-
約1,250万円 部位別の費用
- リフォーム箇所
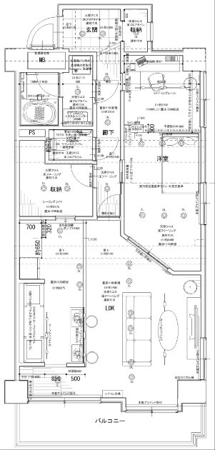
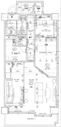
- 浴室・お風呂、リビング、ダイニング、脱衣所、寝室・子ども部屋・趣味部屋
- リフォーム範囲
- 間取り変更・増減改築を含むリフォーム
※使用製品などは部位別の施工事例詳細ページでご覧ください
部位別のリフォーム内容
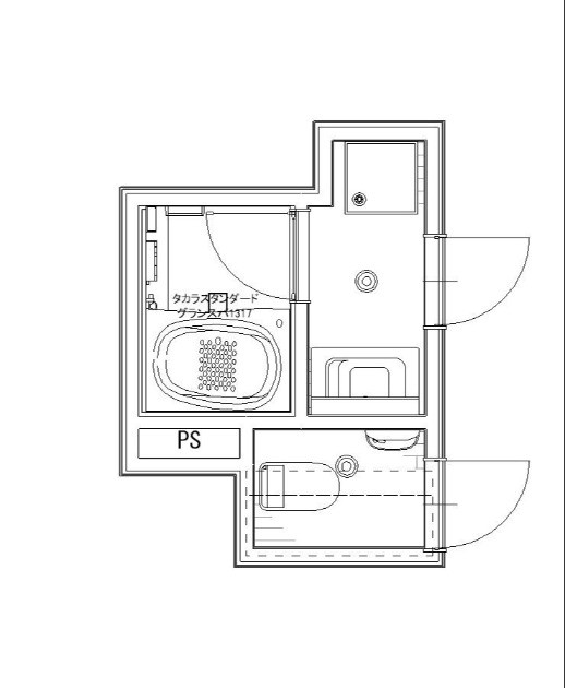
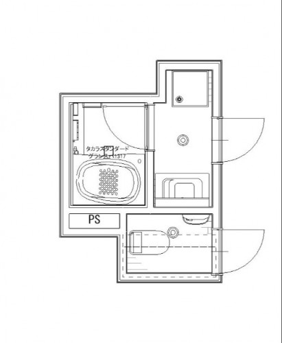
浴室・お風呂
リフォームのポイント
- デザイン・空間コーディネート
お手入れしやすいとの観点から綺麗が続き、メンテナンスに掛ける時間も削減できるホーロー材を使用した商品をご提案しました。洗面室側との配色を合わせてまとまったデザインとさせて頂きました。
その他
リフォームのポイント
- デザイン・空間コーディネート
設備や家具、家電を初めとしてデザイン・性能にこだわってセレクトしました。内装材の仕様もCGパースやサンプルを確認しながらイメージを共有させて頂きご提案させて頂きました。キッチンと寝室のデスクスペースを小上がりを設け、空間に立体感を出し、空間としてのエリア分けを行いました。「男の隠れ家」のような空間へと変わりました。
お客さまの声
AKISHIMA BASE
3LDK間取りのマンション一室を一人暮らし用に全体的に改装したいです。趣味のゲームを集中して楽しむことが出来る空間と、男の一人暮らしなので水廻り設備においてもデザイン性はもちろん、掃除がしやすいものを希望してました。浴室にご提案頂いたタカラスタンダードのホーローを使用したユニットバスをショールームで見て、最適だと思い選びました。
同じ都道府県内で部位別にリフォーム事例を探す
リフォームのご計画に
お役立てください











一言コメント
リフォームのゴールやきっかけ、理想の住まい像は、人によって様々です。理想の住まいを実現するためにリフォームをする方もいれば、外まわりや設備の経年劣化のためにリフォームする方もいます。自分の好みにあわせて、インテリアやデザインを変えたいという方もいますし、老後の暮らしやすさのためにバリアフリーにする方もいます。ご家族の状況、目的に応じて適切な機能や生活しやすい間取りも変わります。100世帯の住まいがあれば、100個のストーリーがあると考え、お客様のライフスタイルにぴったりと合うご提案をさせていただきます。