田の字の和風住宅を暮らしやすい家にリノベーション
築41年以上/子どもとの暮らし
工事後キッチン(LDK)
工事後浴室
工事後脱衣室。
洗濯機も脱衣室に設置。深型流しも設置してハードな汚れものも室内で洗えるようになった。
工事後洗面化粧台(洗面室)
工事後のLDK(和室と広縁から間取り変更)
工事後のリビング(LDK)、和室と広縁から間取り変更。
待望の薪ストーブも設置
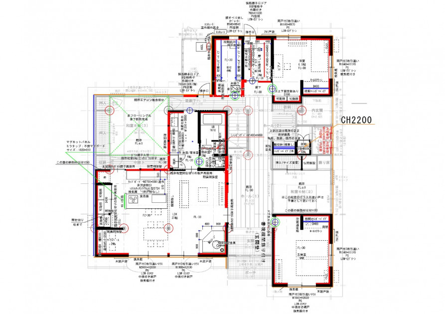
工事後1F平面図。
日当たりや風通しのいい南向きの和室続き間をLDK化。
その他部屋も主寝室や子ども部屋にして使いやすい1F間取りとした。
すべてを改修するとい予算オーバーとなるため部屋はゾーニングしそれぞれ断熱改修している。(赤線部分で断熱)
このお店が
施工しました !
大松建設株式会社 お店の詳細を見る
電話で相談するTEL0120-10-8787受付時間:09:00~17:00
定休日:日曜
(ショールーム完全予約制(1日2組)※営業担当者不定休)
上記の電話番号にかからない場合は
0790-62-4648におかけください。
WEBでのお問い合わせはこちら
リフォーム概要
- 構造
- 木造
- 築年数
- 築41年以上
- 同居するご家族の人数
- 3
- 施工地
- 兵庫県 / 神崎郡市川町
- 施工期間
- 約8ヶ月
- リフォーム総額
-
約3,000万円 部位別の費用
- リフォーム箇所
- キッチン・台所、浴室・お風呂、洗面所・洗面化粧台、リビング、ダイニング、脱衣所、寝室・子ども部屋・趣味部屋、その他屋内、窓・サッシ、外壁・屋根・外構・エクステリア
- リフォーム範囲
- 水まわり機器入れ替えリフォーム、床・壁・天井も含むリフォーム、間取り変更・増減改築を含むリフォーム
※使用製品などは部位別の施工事例詳細ページでご覧ください
部位別のリフォーム内容
キッチン・台所
リフォームのポイント
- 収納力アップ
- デザイン・空間コーディネート
- 家事らく
これまで家の隅に追いやられていたキッチン。
リノベーションでLDK化したことで家族の様子がよくわかるキッチンに。
カップボードは造作し収納もたくさんできるようになりました。
浴室・お風呂
リフォームのポイント
- バリアフリー
- デザイン・空間コーディネート
- 家事らく
とにかく冬寒かった全面タイルの在来浴室。脱衣塲も狭く浴室への動線もいまいち。
リノベーション後は家の中心近くに思い切って場所移動。リビングからの動線も良くなり洗濯も室内で行えるようになった。
何より全面断熱の浴室のおかげで冬でも暖か。快適に過ごせる浴室に生まれ変わった。
洗面所・洗面化粧台
リフォームのポイント
- 収納力アップ
- デザイン・空間コーディネート
- 家事らく
これまで廊下にあった既製品の洗面化粧台。来客時にも目に入り気になる部分でした。
リノベーションにより広々とした収納とカウンター付きの洗面室となりました。
その他
リフォームのポイント
- バリアフリー
- 収納力アップ
- 風通し
- デザイン・空間コーディネート
- 家事らく
和室の続き間と広縁の空間を利用しLDK化。日当たりや風通しもよい気持ちのいいLDKとしました。
工事前の家で使われていた欄間や木製建具も再利用しもともとあった趣も少し残して
施主様のお父さんから受け継いだこの家とともに思い出も残せました(再利用は施主様のご要望)。
お客さまの声
田の字の間取りから暮らしやすい間取りに!
広いけれど実際に暮らしに使用する部屋はそれほど、、広くない。
今ではあまり使い勝手がいいとは言えなかった間取りの家が、家族がそろっても広々としたLDK、そこから直接出入りできる洗面とお風呂、広い家族共有のウォークインクローゼットや室内物干し場、1Fに家族それぞれの個室もあるとても使い勝手のいい家になりました。
加えて、断熱改修もしっかりしたおかげで夏も冬もとても快適です。
このお店が
施工しました !
大松建設株式会社
- 所在地
-
〒671-2528 兵庫県 宍粟市 山崎町野々上392-1
- 電話番号
- 営業時間
-
09:00~17:00
- 定休日
-
日曜 (ショールーム完全予約制(1日2組)※営業担当者不定休)
- FAX
-
0790-62-4757
- 公式
サイト
- 住宅リフォーム事業者団体登録
- 駐車場あり
リフォームのご計画に
お役立てください










一言コメント
「穏やかな毎日を、暖かな木の家で」
~大工スピリッツ~
さりげない、けれどもどこか気持ちのよいおさまりや木遣い、細やかなディテールにその大工のセンスが隠されていると言ってもいいかもしれません。 あくまで主役は家と建物、そして、そこに住む家族です。大工はそれらを輝かせるための脇役に徹し、 そこに住む皆様の笑顔を思い浮かべながら日々精進し、木々と向き合っております。