キッチンリフォーム工事
築31年~40年/シニアの暮らし
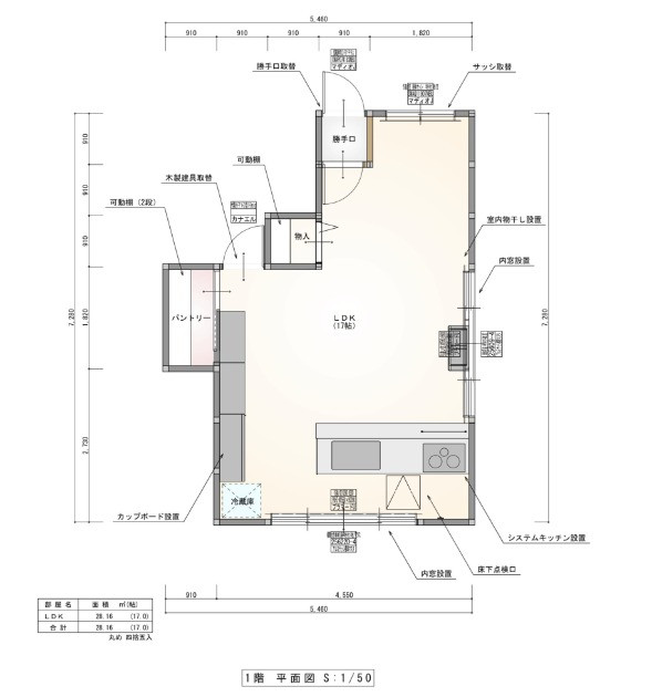
計画平面図
リフォーム前の物入れ用建具を計画では片引き戸へ変更。
扉の仕様を変更する事でキッチン横へカップボードを設置する事が可能に!
既設キッチンスペースはTVスペースに。
アクセントクロスを張る事で窓方向への広がりをアップ。
対面キッチンにし、開放的な空間に!
壁面の収納式の物干しユニットを設置する事で必要がない時は収納し、スッキリと!
キッチン横にカップボード設置する事で家事が楽に!
カップボード横にはパントリー!
建具高さを2m40cmにする事でよりダイナミックな仕上がりに!
調理中でも部屋全体を見渡せるように!
マルチ収納対面なので料理もスムーズに!
このお店が
施工しました !
株式会社プラマー太田 リフォームショップLIPRA お店の詳細を見る
電話で相談するTEL0563-75-5577受付時間:08:30~17:30
定休日:日曜・その他
(祝日営業。GW・お盆・年末年始期間中は休業です。)
WEBでのお問い合わせはこちら
リフォーム概要
- 構造
- 木造
- 築年数
- 築31年~40年
- 同居するご家族の人数
- 2
- 施工地
- 愛知県 / 西尾市
- 施工期間
- 約1ヶ月
- リフォーム総額
-
約800万円 部位別の費用
- リフォーム箇所
- キッチン・台所、リビング、窓・サッシ、外壁・屋根・外構・エクステリア
- リフォーム範囲
- 床・壁・天井も含むリフォーム
※使用製品などは部位別の施工事例詳細ページでご覧ください
部位別のリフォーム内容
キッチン・台所
リフォームのポイント
- 収納力アップ
- デザイン・空間コーディネート
- 家事らく
キッチンと食器棚の動線が対角にあり苦労をしていました。キッチン廻りに食器棚を置くスペースが無く、模様替えによる配置転換が不可能。
部屋の面積は広いが有効活用ができていない為、LDKリフォームの運びに。
キッチンはこの先も長く使用できる様にホーローシステムキッチン トレーシア。
キッチン近くにカップボードを置く事で動線も楽になりました。
また使いづらかった物入をパントリーに変更する事でより使いやすく、部屋の中をすっきりと。
内装は娘夫婦の意見を取り入れ、2世帯で創り上げたLDKに変身!
その他
お客さまの声
家事を快適に!過ごしやすいキッチン空間へ
想像以上の仕上がりでした。
部屋も明るく感じるようになり、とても広くなった感じがします。
内窓を取り付けてもらい、部屋の中も快適に過ごせます。
収納も増えた事で部屋がすっきりしました。
食器棚も近くなり、家事が楽になりました。
同じ都道府県内で部位別にリフォーム事例を探す
リフォームのご計画に
お役立てください









一言コメント
「こまったをよかったに変えられる私たちでありたい」
わたしたち【リフォームショップLIPRA】はお庭まわりからお家の中まで住まいのどんなところの補修にも対応。
設備を新しくしたい方、住まいのイメージチェンジをしたい方は、一度当社までご相談ください。
今よりもっと快適でもっと便利な暮らしになるリフォームプランをご提案させていただきます!
本社のプラマー太田は水道屋!水廻りのアフターフォローまで幅広く対応させていただきます。