安心・安全に暮らせる実家リフォーム!!
築41年以上/シニアの暮らし/二人暮らし
ホーローパネルでお掃除しやすく。キッチンの寒さも解消。
コンパクトにまとめました。
バリアフリー化でき直接外に面した窓で開放的に 。
落ち着きあるカラーと床のタイルが安全・安心に入浴できますね。
明るく機能的で広々した空間。
安心安全にエネルギーを太陽光発電・蓄電池にしキッチンはプロパンガスで万が一にも対策をしています。前面床を改修し、バリアフリーと断熱処理を施しました。
このお店が
施工しました !
かんぶん 便利・リフォーム部 お店の詳細を見る
電話で相談するTEL0120-019-586受付時間:09:00~18:00
定休日:年中無休
(元日定休)
上記の電話番号にかからない場合は
0195-23-5110におかけください。
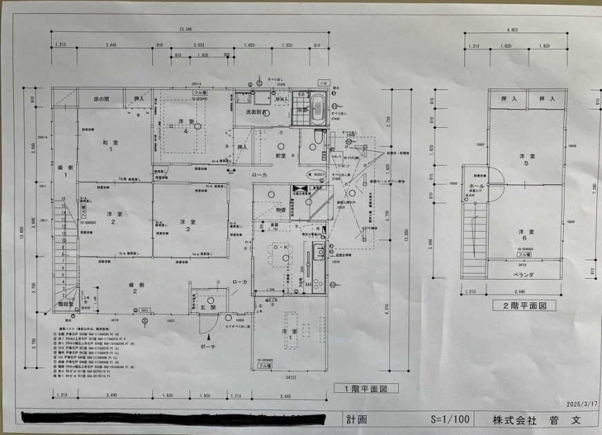
リフォーム概要
- 構造
- 木造
- 築年数
- 築41年以上
- 同居するご家族の人数
- 2
- 施工地
- 岩手県 / 二戸市
- 施工期間
- 約4ヶ月
- リフォーム総額
-
約2,500万円 部位別の費用
- リフォーム箇所
- キッチン・台所、浴室・お風呂、洗面所・洗面化粧台、ダイニング、脱衣所、窓・サッシ、外壁・屋根・外構・エクステリア
- リフォーム範囲
- 間取り変更・増減改築を含むリフォーム
※使用製品などは部位別の施工事例詳細ページでご覧ください
部位別のリフォーム内容
キッチン・台所
浴室・お風呂
リフォームのポイント
- バリアフリー
- 風通し
以前は勝手口に面した窓はあったが外気取入れができず息苦しい感じでした。
脱衣スペースも洗濯機や物で狭く部屋に囲まれていたためにじめじめしていた。
思い切って洗面脱衣を北側の部屋のスペースに移動させたことでゆったりした空間になった。
洗面所・洗面化粧台
リフォームのポイント
- 収納力アップ
- デザイン・空間コーディネート
今まで狭かった洗面脱衣室を1.5坪にスペース広げ窓もついたのでかんきも、日あたりも非常に良くなった。
窓上にルームヒーターで冬場の洗面所まで暖かく、洗濯機上に棚を設け収納たっぷり、家事らくになりました。
その他
このお店が
施工しました !
かんぶん 便利・リフォーム部
- 所在地
-
〒028-6195 岩手県 二戸市 堀野字長地75-4
- 電話番号
- 営業時間
-
09:00~18:00
- 定休日
-
年中無休 (元日定休)
- 公式
サイト
- 駐車場あり
リフォームのご計画に
お役立てください







一言コメント
各種リフォーム・設備工事承ります。住まいの小さな困り事も何でもご相談下さい。